Vauhtila
Kauppa
Pyydä tarjous
Toimitussisällöt
Käyttövalmis
Tarviketoimitus
Yhteystiedot
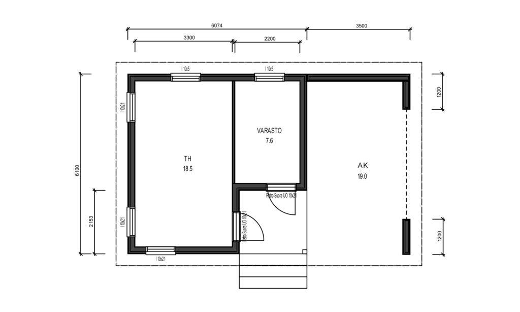
THV+AK58