Vauhtila
Kauppa
Pyydä tarjous
Toimitussisällöt
Käyttövalmis
Tarviketoimitus
Yhteystiedot
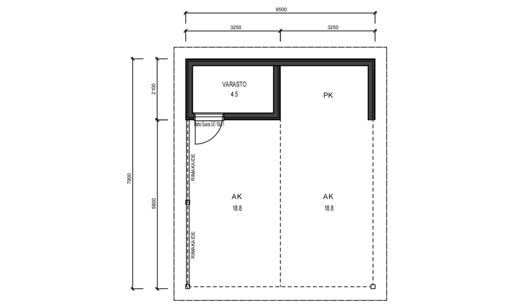
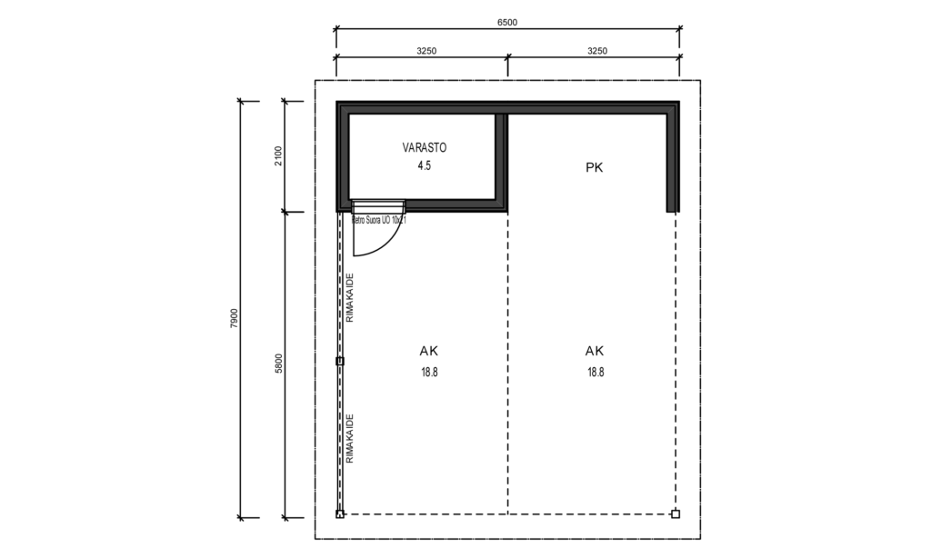
AKVP51